欢迎访问公司网站,我们专营三马电动葫芦,防爆电动葫芦,环链电动葫芦,船用电动葫芦,冶金电动葫芦,以及各种电动葫芦配件...
Sitemap
|
加入收藏
24小时服务热线:
18115919885
首 页
关于我们
产品展示
新闻资讯
企业业绩
技术支持
客户留言
联系我们
钢丝绳电动葫芦
三马电动葫芦配件
防爆电动葫芦
环链电动葫芦
欧式电动葫芦
非标定制电动葫芦
悬臂起重机
平衡吊
起重机
当前位置:
首 页
>>
产品中心
>>
悬臂起重机
移动式悬臂起重机
发布日期:2021年08月13日
详情说明
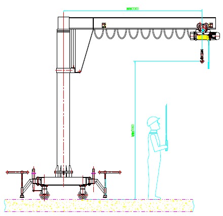
移动式悬臂起重机是CD1、MD1型电动葫芦或手拉葫芦配套使用的起重机械,是一种移动方便,广受欢迎一种小型起重设备。
移动式旋臂吊系列BZY型
品种、规格及参数:
型号
起重数( T )
起升高度H(m)
回转半径R(m)
回转角度
回转方式
回转速度(r/min)
起升速度(m/min)
BZY
0.08
0.25
0.5
1
1.5
2
3
2
3
360度
手动或电动
0.7rpm
8或8/0.8
上一篇:
三马悬臂吊
下一篇:
BZY移动式旋臂起重机
公司地址
联系邮箱
服务热线
联系QQ
江苏省靖江市城北工业园区
sanmahulu@163.com
18115919885 / 0523-85100595
670944510
关于我们
产品导航
新闻资质
关于我们
钢丝绳电动葫芦
非标定制电动葫芦
行业资讯
企业业绩
防爆电动葫芦
电动葫芦配件
公司新闻
技术支持
环链电动葫芦
悬臂起重机
电动葫芦FAQ
联系我们
欧式电动葫芦
平衡吊
Sitemap
起重机
Copyright © 靖江市双马起重设备有限公司 All rights reserved 版权所有